1.230,00 €*

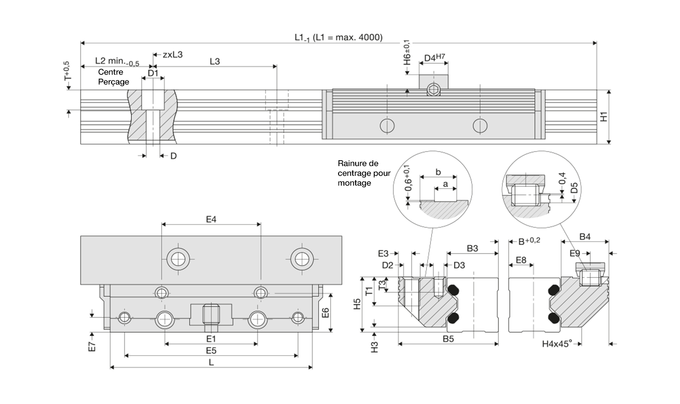
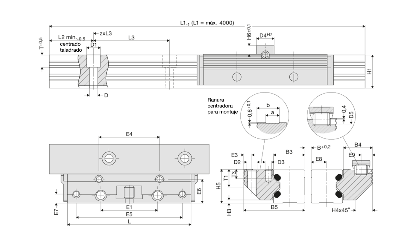
Baugröße
Profilschienenpaar
Rollenschuhpaare
Produktnummer: FDDR25#617593#84367P
Produktinformationen "FDD-R"